


01. 基本尺寸:
13340*6000*6000 mm
02. 占地面積 :
80.04m2
03. 基礎配置 :
內容:裸水管,內部集成板、墻面、吊頂,基礎照明,地面PVC地板、基礎皮膚、內部電箱,五孔插座
04. 選配配置:
(a)店招燈箱
(b)延伸設計
(c)外擺系統
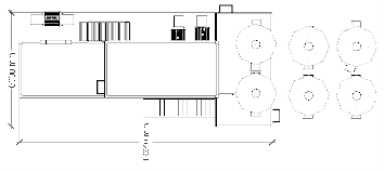
05.平面圖( 純手工測量存在少許誤差,具體以實際情況為準 ):

上海市靜安區廣中路788號上海大學延長校區秋實樓9樓906室
場景專線:400-100-2515
小程序
公眾號
返回頂部
打開微信,點擊底部的“發現”
使用“掃一掃”即可分享至朋友圈

